47 Cootharaba Road, Gympie, QLD 4570 | Property Value & History | OnTheHouse
OFF MARKET

47 Cootharaba Road
Gympie QLD 4570

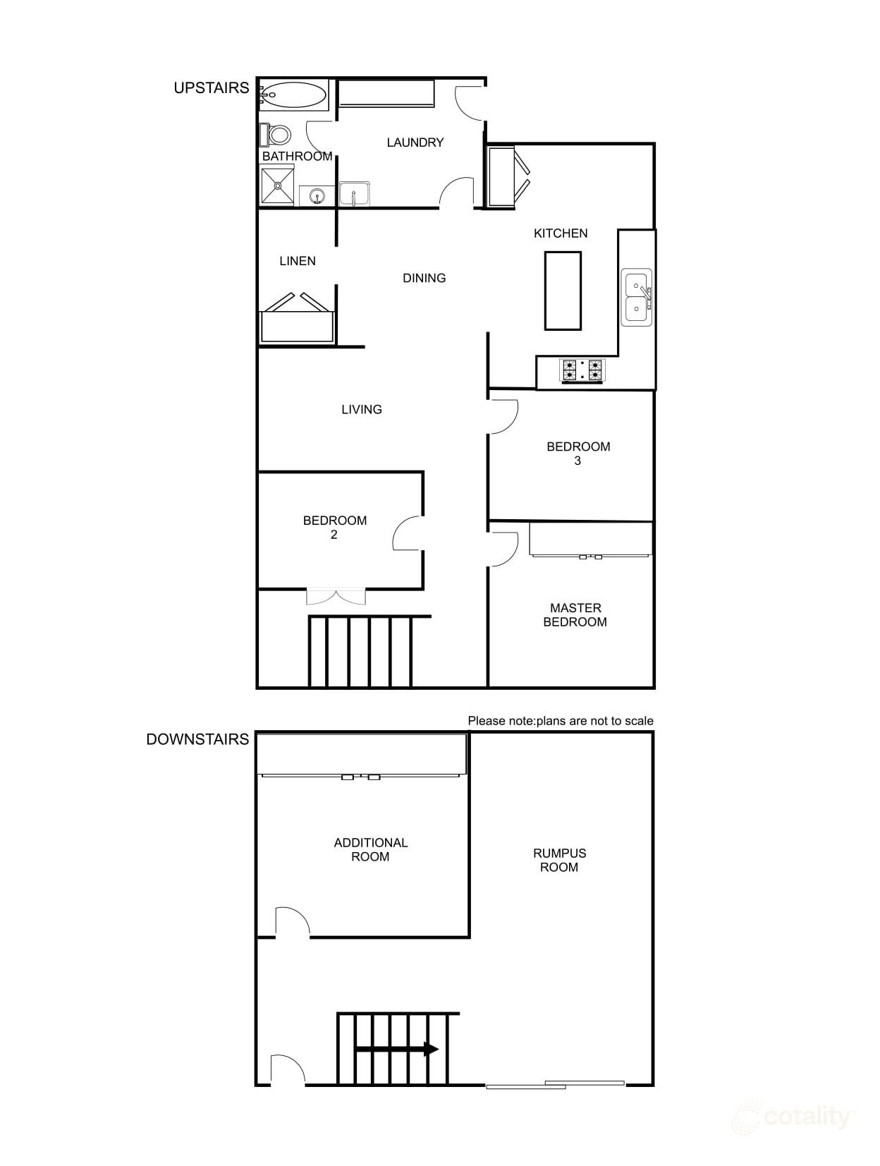
Bedrooms: 1
Bathrooms: 2
Car spaces: 1
Floor area: 80m2
Land area: 1285m2
Estimated Value & Rent
Estimated Value
Estimated Rent
Confidence
Last updated 29 Dec 2025
Low

High
Save

Property Details for 47 Cootharaba Rd, Gympie

47 Cootharaba Rd, Gympie is a 1 bedroom, 2 bathroom House with 1 parking spaces and was built in 1978. The property has a land size of 1285m2 and floor size of 80m2. While the property is not currently for sale or for rent, it was last sold in September 2017.

Building Type
House
Year Built
1978
Floor Size
80m2
Land Size
1285m2
Local Government
Gympie Regional
Lot/Plan
1/MPH23948

Last Listing description (July 2024)

Miners Cottage on a large & potential development block!

- 1,285m2 Flood Free Allotment With All Town Services
- Opposite Gympie State High School
- Walk To New Aquatic Centre, Primary Schools, Shops
- Eastern Side Of Town 40 Mins To Tin Can Bay 50 Mins To Rainbow Beach
- Two Bedrooms Plus Sunroom
- Single Car Accommodation With Ample Room For More Sheds ETC
- Currently Tenanted At $195 Per Week
- Concrete Stumps & Hardwood Flooring

Invest in your future today as tomorrow may be too late with this bargain!
Call me Billy Mitchell to arrange a private viewing today.


Property History for 47 Cootharaba Rd, Gympie, QLD 4570

A timeline of how this property has performed in the market
Last Sold
$180,000
29 Sep 2017
Listed for Rent
$275/w
18 Feb 2019
  • 12 Aug 2021
    Listed for Sale RECENT SALES
  • 31 Jan 2019
    Listed for Rent $275 / week
  • 01 Aug 2018
    Listed for Rent $260 / week
Sign in to see more transactions
Commute Calculator

About Gympie 4570

The size of Gympie is approximately 15.2 square kilometres. It has 32 parks covering nearly 13.9% of total area. The population of Gympie in 2016 was 10803 people. By 2021 the population was 11355 showing a population growth of 5.1% in the area during that time. The predominant age group in Gympie is 10-19 years. Households in Gympie are primarily childless couples and are likely to be repaying $1000 - $1399 per month on mortgage repayments. In general, people in Gympie work in a labourer occupation.In 2021, 59.20% of the homes in Gympie were owner-occupied compared with 54.10% in 2016.

Gympie has 6,647 properties. Over the last 5 years, Houses in Gympie have seen a 119.92% increase in median value, while Units have seen a 104.35% increase. As at 30 November 2025:

  • The median value for Houses in Gympie is $635,966 while the median value for Units is $465,841.
  • Houses have a median rent of $538 while Units have a median rent of $360.
There are currently 50 properties listed for sale, and 37 properties listed for rent in Gympie on OnTheHouse. According to Cotality's data, 419 properties were sold in the past 12 months in Gympie.

Suburb Insights for Gympie 4570

Market Insights
Gympie Trends for Houses
Median Value

N/A

-
View Trend
Median Growth

N/A

View Trend
Median Rent

N/A

-
View Trend
Rental Yield

N/A

-
View Trend
Median Value: The middle value of all properties across the geography based on the Automated Valuation Model.


Median Value over 1 year
Gympie Trends for Units
Median Value

N/A

-
View Trend
Median Growth

N/A

View Trend
Median Rent

N/A

-
View Trend
Rental Yield

N/A

-
View Trend
Median Value: The middle value of all properties across the geography based on the Automated Valuation Model.


Median Value over 1 year
Neighbourhood Insights
Age
Household
Occupancy
No data to show
Cotality Copyright and Legal Disclaimers about Property Data
Disclaimer
The Cotality Data provided in this publication is of a general nature and should not be construed as specific advice or relied upon in lieu of appropriate professional advice.

While Cotality uses commercially reasonable efforts to ensure the Cotality Data is current, Cotality does not warrant the accuracy, currency or completeness of the Cotality Data and to the full extent permitted by law excludes all loss or damage howsoever arising (including through negligence) in connection with the Cotality Data.