122 Eagleby Road, Eagleby, QLD 4207 | Property Value & History | OnTheHouse
OFF MARKET

122 Eagleby Road
Eagleby QLD 4207

Bedrooms: 4
Bathrooms: 2
Car spaces: 4
Floor area: 93m2
Land area: 430m2
Estimated Value & Rent
Estimated Value
Estimated Rent
Confidence
Last updated 6 Oct 2025
Low

High
Save

Property Details for 122 Eagleby Rd, Eagleby

Building Type
Land
Year Built
2020
Floor Size
93m2
Land Size
430m2
Local Government
Logan City
Lot/Plan
8/SP178055

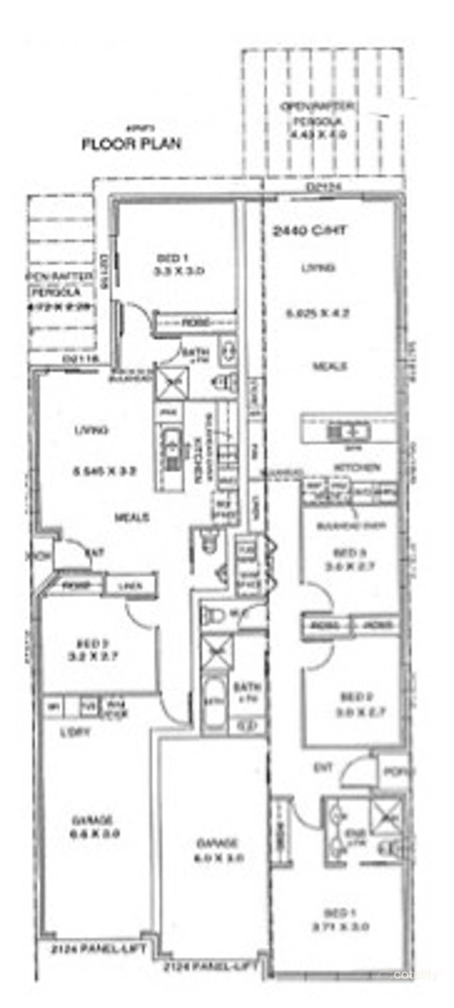
Last Listing description (January 2024)

Your next home at 122 Eagleby Road is located on the serene fringe of Suburbia. It overlooks farmland flowing into bushland like some sort of fairy-tale, but youre five minutes from the highway!

Lets take a look around:
- Master Bedroom with Walk-In Wardrobe, Fan,

- AND Private En-Suite Low-Hob Shower and Wide Vanity.
- Three More Bedrooms with Built-In Wardrobes and Fans.
- Spacious Bathroom with Full-Size Bath and Separate Shower, Toilet has its own adjacent room.
- Galley Kitchen with Big Fridge Space, Electric Glass Cooking, Dishwasher and Stone Tops.
- Huge Open Plan Living Area with Air-Conditioning opening onto.
- Full Length Covered Outdoor Alfresco Area, Fully-Tiled!
- Easily Maintained Yard and Gardens.
- Double Lock-Up Garage with Automatic Door Opener.
- Internal Laundry leading straight to Clothesline.

And some extra features:
- Air-Conditioning!
- NBN Connected.
- LED Downlights throughout.
- Fans to Bedrooms, Living and Alfresco.
- Security Screens to ALL Windows and Doors.
- Blinds to all Openings.
- Soft Carpet to Bedrooms and Easily Cleaned Tiles elsewhere.

Why the location is so great:
- 4min Walk to Bus (290m).
- 6min Walk to Parkland (450m).
- 10min Walk to Eagleby State School (750m).
- 3min Drive to Shopping Centre (1.7km).
- 5min Drive to Pacific Motorway (3.7km).
- 7min Drive to Beenleigh State High School (4.7km).
- 12min Drive to Logan Hyperdome (10.3km).
- 30min Drive to Brisbane CBD (36.8km).

This home is PERFECT for families, singles, couples, seniors and more- so they dont last long! Get in touch today to organise a viewing!

Your new Landlord and Agent cant wait to meet you!
*Pets considered on application.
*Registration for viewings is essential or a scheduled time may be cancelled without notice.
*Travel times calculated using Google Maps and are subject to change.
*Applicant must connect with Diamond Energy or extra charges are applicable.
*The solar system provides limited benefit, contact agent for more information.

Property History for 122 Eagleby Rd, Eagleby, QLD 4207

A timeline of how this property has performed in the market
Last Sold
$209,000
27 Jul 2020
Listed for Rent
$650/w
26 Jan 2024
  • 15 Jan 2024
    Listed for Rent $650 / week
  • 27 Jul 2020
    Sold for $209,000
  • 29 Oct 2019
    Listed for Sale Contact Agent
Commute Calculator

About Eagleby 4207

The size of Eagleby is approximately 13.8 square kilometres. It has 22 parks covering nearly 7.7% of total area. The population of Eagleby in 2016 was 13326 people. By 2021 the population was 13594 showing a population growth of 2.0% in the area during that time. The predominant age group in Eagleby is 30-39 years. Households in Eagleby are primarily childless couples and are likely to be repaying $1000 - $1399 per month on mortgage repayments. In general, people in Eagleby work in a labourer occupation.In 2021, 51.00% of the homes in Eagleby were owner-occupied compared with 48.60% in 2016.

Eagleby has 5,939 properties. Over the last 5 years, Houses in Eagleby have seen a 148.67% increase in median value, while Units have seen a 181.89% increase. As at 31 January 2026:

  • The median value for Houses in Eagleby is $779,982 while the median value for Units is $640,912.
  • Houses have a median rent of $560 while Units have a median rent of $520.
There are currently 55 properties listed for sale, and 10 properties listed for rent in Eagleby on OnTheHouse. According to Cotality's data, 318 properties were sold in the past 12 months in Eagleby.

Suburb Insights for Eagleby 4207

Market Insights
Eagleby Trends for Houses
Median Value

N/A

-
View Trend
Median Growth

N/A

View Trend
Median Rent

N/A

-
View Trend
Rental Yield

N/A

-
View Trend
Median Value: The middle value of all properties across the geography based on the Automated Valuation Model.


Median Value over 1 year
Eagleby Trends for Units
Median Value

N/A

-
View Trend
Median Growth

N/A

View Trend
Median Rent

N/A

-
View Trend
Rental Yield

N/A

-
View Trend
Median Value: The middle value of all properties across the geography based on the Automated Valuation Model.


Median Value over 1 year
Neighbourhood Insights
Age
Household
Occupancy
No data to show
Cotality Copyright and Legal Disclaimers about Property Data
Disclaimer
The Cotality Data provided in this publication is of a general nature and should not be construed as specific advice or relied upon in lieu of appropriate professional advice.

While Cotality uses commercially reasonable efforts to ensure the Cotality Data is current, Cotality does not warrant the accuracy, currency or completeness of the Cotality Data and to the full extent permitted by law excludes all loss or damage howsoever arising (including through negligence) in connection with the Cotality Data.